园区租赁 —— 园区房屋租赁
园区
一号楼G层
一号楼一层
一号楼二层
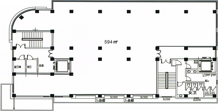
一号楼三层
园区
二号楼G层
二号楼A层
二号楼B层
二号楼C层
二号楼D层
二号楼E层
园区
六号楼二层
六号楼三层
六号楼四层
六号楼五层
六号楼六层
园区
七号楼二层
园区
八号楼G层
八号楼A层
八号楼B层
八号楼C层
园区
十号楼A幢二层
十号楼A幢三层
园区
十号楼B幢二层
十号楼B幢三层
十号楼B幢四层
十号楼B幢五层
十号楼B幢六层
十号楼B幢七层
园区
十一号楼一层
十一号楼二层
十一号楼三层
园区
十五号楼一层
十五号楼二层
园区
順平路商鋪

































8#-北A06
257M2
1#-A105
125M2
1#-A107
75.5M2
1#-A108
187.5M2
8#-北B05
607.5M2
1#-A109
768M2
1#-A201
742M2
8#-北B09
284M2
1#-A208
768M2
8#-北C01-02
1201.5M2
8#-北C05
607.5M2
1#-A303
125M2
8#-北C06
291.5M2
2#-A13
198M2
8#-北C07
432M2
1#A307
106M2
1#-A308
118.98M2
8#-北C10
425M2
8#-北C11
212M2
1#-B102
199M2
2#-A23
181M2
1#-B116
151M2
2#-B02
89M2
1#-B118
110M2
8#-中A15
251.5M2
8#-中A16
283M2
1#-B212
69M2
2#-B20
95M2
1#-B213
117.5M2
8#-中B12
291.5M2
1#-B302
200M2
1#-B309
93M2
1#-B315
103M2
8#-中C13
432M2
8#-中C15
379.5M2
2#-C08
258M2
8#-中C18
281M2
8#-南A03
108M2
8#-南A05
108M2
2#-C22
77M2
1#-C110
125.5M2
8#-南A07
220M2
1#-C112
75.5M2
8#-南A09
458M2
1#-C115
113M2
1#-C116
339.5M2
2#-D01
89M2
8#-南B03
108M2
2#-D03
239M2
1#-C211
130.5M2
2#-D09
258M2
8#-南B16
425M2
8#-南B19
108M2
8#-南B20
108M2
1#-C302
199M2
8#-南B21
106M2
1#-C303
146M2
8#-南C01
129.5M2
1#-C306
105M2
1#-C310
125M2
8#-南C09
252M2
2#-D39
56M2
1#-B120
213.5M2
1#-B122
258M2
10A#-301-302
301M2
10A#-307
149M2
7#-201
110M2
7#-202
55M2
7#-203
145M2
7#-205206
212.5M2
7#-207
57M2
10B#-商165/双阳-001
675M2
6#-701(仓)
33M2
8#4F弱电间
3M2
15#104
151.54M2
15#203
15.385M2
15#204
113.08M2
1号楼C区
10M2
8#-北A02
538.5M2
8#-北大厅瑞幸
55.4M2
1#-G09
55M2
3号楼A01
860.85M2
3号楼A06
611.34M2
3号楼A07
589.14M2
3号楼A08
299.61M2
3号楼A09
615.41M2
3号楼A12
608.56M2
3号楼A13
305.19M2
3号楼A16
1281.01M2
3号楼A17
84.66M2
3号楼A18
122.18M2
3号楼B02
609.72M2
3号楼B07
554.84M2
3号楼B11
494.97M2
3号楼B12
608.56M2
3号楼B13
305.19M2
3号楼B16
1281.01M2
3号楼B17
84.66M2
3号楼C07
694.41M2
副楼1层D01
311.99M2
15#-202A
25M2
15#-202B
25M2
8#-中C11
307.5M2
15#-205B
55.5M2
1#-C105-2
102.55M2
3号楼G03
30M2
1#-B222-2
196.5M2
3号楼G06-1
124.96M2
1#A307-1
81.5M2
1#A308-2
103.25M2
1#A308-3
72.27M2
1#A308-5
99.05M2
1#A308-6
111.8M2
1#A308-7
73.62M2
1#A308-8
75.5M2
1#A308-9
73.25M2
1#-B315-1
98M2
1#-C305-01
75.5M2
地铁12号线隆昌路站150米
021-51807811
欢迎垂询

出租率:81.68%,
空房率:18.32%